Cusboonaysiinta Habka Mashiinka ee Qaybaha Godka Qotoda Dheer ee Fidsan
Nov 08,2022
Habka hawlgalka wuxuu si gaar ah ula xiriiraa habka mashiinka leexashada ee waalka ugu weyn ee qaybta jeexdinta qoto dheer ee diyaaradda. Mashiinka GreatLight CNC Qalabka qodista ee gaarka ah ee loogu talagalay mashiinka qodista godka qotoda dheer ee diyaaradda. Iyada oo loo marayo hal-abuurka naqshadeynta qaab-dhismeedka iyo qaabka qalabka iyo habaynta macquulka ah ee habka, farsamaynta qaybaha jeexdinta qotoda dheer ee diyaaradda ayaa la dhammeeyay.
Farshaxanka Asalka: Habka farsamaynta waxaa loo adeegsadaa qaybta farsamaynta duubista dufcadda iyo soo saarista qaybaha fidsan iyo kuwa qoto dheer.

1. Qaab-dhismeedka qaybaha iyo shuruudaha farsamada
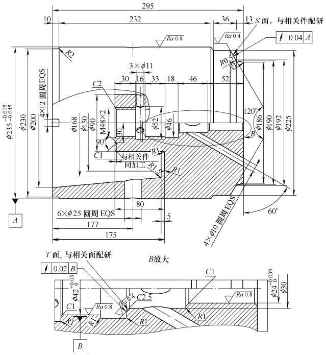
Qaab-dhismeedka qaybta waxaa lagu muujiyay Jaantuska 1-7. Maaddada qaybta waa 2Cr13, taas oo u baahan in la damiyo oo la qaboojiyo ka dib marka la rogo qallafsan. Adkaantu waa 269~292HB. Dulqaadka cabbirka godka gudaha ee qaybta waa φ42mm. ° Qiimaha qallafsanaanta dusha sare ee koonka waa Ra=0.4μm, qiimaha qallafsanaanta dusha sare ee wareegga dibadda ee 120° koonka waa Ra=0.4μm. Shuruudaha farsamo waxay qeexayaan in adkaanta daaweynta kulaylka maxalliga ah ee dusha koonka ay tahay 48~52HRC, waxaana la jaan qaadayaa qaybaha khuseeya.

Jaantuska 1-7 Waalka ugu weyn ee qayb
2. Falanqaynta tiknoolajiyada farsamaynta
Makiinadaha qaybtan waxay leeyihiin dhibaatooyinka farsamo ee soo socda:
(1) Wajiga ugu dambeeya ee godka diyaaradda waa 175mm qoto dheer oo ka bilaabmaya wejiga bidix ee qaybta, iyo 80mm laga bilaabo wejiga dhammaadka oo leh cabbir dhan φ90mm. Meesha bannaan ee godka qoto dheer waa yar tahay, xaddiga jarista waa weyn tahay, ka saarista jajabkuna way adag tahay.
(2) Waxqabadka jarista birta aan miridhku lahayn waa mid liita, inta badan: ① Balaastig sare, taas oo ka dhigaysa shaqada mid adag inta lagu jiro farsamaynta waxayna kordhisaa iska caabbinta jarista. ② Heerkulka sare ee jarista ayaa ka dhigaya qalabka mid fudud in la xidho. ③Waa fududahay in la dhejiyo mindiyaha oo la soo saaro gees isku urursan. ④ Jajabyada ma fududa in la laalaabo oo la jabiyo.

3. Tallaabooyinka farsamada
Marka la eego dhibaatooyinka habaynta ee kor ku xusan, tallaabooyinka farsamo ee soo socda ayaa la qaaday:
(1) Naqshadeynta iyo soo saarista qalab gaar ah oo lagu qodo godka si loogu farsameeyo jeexdinta qoto dheer ee diyaaradda. CNC leexashada god diyaaradeed, mid ka mid ah cidhifyada qalabka godka ayaa u dhigma godka leexashada. Si looga fogaado faragelinta u dhaxaysa qalabka leexashada CNC iyo dusha sare ee qaybta shaqada, gadaasha qalabka ee cidhifka qalabka waxaa loo sameeyaa qaanso iyadoo loo eegayo dhexroorka qaabka qaansada godka diyaaradda, iyo hubinta xagal gadaal ah oo gaar ah. Cidhifka kale ee qalabka godka diyaaradda wuxuu u dhigmaa leexashada wareegga dibadda. Marka la rogayo godka qoto dheer ee diyaaradda, caarada qalabku aad bay u dheer tahay, adkaanshuhu waa liitaa, waana fududahay in la sameeyo gariir. Waxa kale oo loo sameeyaa dusha sare ee qaansada, waxaana la hubaa inuu leeyahay xagal gadaal oo gaar ah.
Mindida jeexdintu waxay ka kooban tahay saddex qaybood oo alxan ah: qaybta isku xidhka, jidhka jarista dusha sare ee qaansada, iyo madaxa jarista carbide-ka:
①Qaybta isku xidhka waxay ka samaysan tahay 45 bir ah.
②Qalabka jarista dusha sare ee laba-geesoodka ah waxa uu ka samaysan yahay tuubo bir ah oo 30CrMnSi ah oo leh dhexroor dibadda ah oo ah φ140mm iyo god gudaha ah oo ah φ128mm oo loo farsameeyay xariijimo iyadoo la adeegsanayo shiidi toosan. Si loo kordhiyo xoogga jirka jarista, adkaanta daminta kulaylka waa 38 ~ 42HRC.
③Madaxa jarista carbide-ka ee sibidhka ah ayaa qaata YG8N, YW1, YW2, nooca daabkuna waa C304.
Mindi jeexdinta xuduudaha joomatari iyo sifooyinka jarista:
① Jajabyada qaabaysan ee xarigga leh waxay leeyihiin waxqabad xooggan oo qodis ah marka ay arkaan tolmada. Habka loo jeexo jeexa ayaa hagaajiya xaaladaha ka saarista jajabka, wuxuu dheereeyaa cimriga adeegga qalabka 3 jeer, wuxuuna kordhiyaa hufnaanta wax soo saarka 1 jeer.
②Xagasha weyn ee rake-ka waxaa la jaanqaadaya chamfering taban, caaradda qalabkuna waxay qaadataa gees wareegsan oo R1mm ah, kaas oo yareeya xoogga jarista, xoojiya geeska jarista, oo kordhiya cimriga qalabka. Qaab-dhismeedka qalabka jeexista waxaa lagu muujiyay Jaantuska 1-8.

Jaantuska 1-8 Mindi gaar ah oo lagu qodo
(2) Naqshadeynta iyo soo saarista qalab god gudaha ah oo wareegsan oo isku xira si loo xalliyo dhibaatooyinka farsamaynta ee rogista dunta gudaha ee M48×2, godka gudaha ee φ42 mm iyo φ30mm, iyo qalab gudaha ah oo madhan. Qaab-dhismeedka waxaa lagu muujiyay Jaantuska 1-9.

Jaantuska 1-9 Qalabka godka gudaha ee isku xira wareeg ah
(3) Naqshadeynta iyo soo saarista miiska qalabka ee godka gudaha ku haya qalabka, kaas oo xalliya dhibaatada farsamaynta taper ee dhexroorka weyn ee dhammaadka φ200mm iyo dhexroorka dhammaadka yar ee φ168mm. Qaab-dhismeedka waxaa lagu muujiyay Jaantuska 1-10.

Jaantuska 1-10 Miis mindi ah oo leh qalabka godka gudaha
4. Qorshaha habka wareejinta CNC
Qorshaha geeddi-socodka ee uu qaatay Mashiinka CNC waa:
① Wareejinta qallafsan, dhexroorka dibadda ee leexashada qallafsan waa φ239mm, dhererka kantaroolka waa 298mm, dhexroorka godka gudahana waa φ143mm qoto dheerna waa 90mm.
② Deminta iyo kululaynta, 280~320HBW.
③Wareegidda nus-dhammaystiran, godka gudaha φ42mm, φ24mm, dusha sare ee T oo leh Ra = 0.4μm gunnada 0.4 ~ 0.5mm, goobada dibadda φ235mm, Ra = 0.4μm dusha sare ee S oo leh gunnada 0.6 ~ 0.7mm, Dhexroorka dhammaadka weyn waa φ200mm, dhexroorka dhammaadka yarna waa φ168mm, mugga dhammaystirka CNC waa 2 ~ 3mm.
④Dhinaca CNC, xakamee taper-ka dhexroorka weyn ee dhammaadka φ200mm iyo dhexroorka dhammaadka yar φ168mm.
⑤ Sadar sawir.
⑥ Shiididda toosan, qaybinta wareegsan ee 4 × 12.
⑦ Biinanka, 6×φ25mm ayaa si siman ugu baahsan wareegga, 3×φ11mm, 4×φ10mm ayaa si siman ugu baahsan wareegga.
⑧Damida dusha sare, adkaanta 45 ~ 48HRC (godka gudaha oo leh dulqaad, dusha sare ee koonka T ee Ra = 0.4μm, dusha sare ee koonka S ee wareegga dibadda Ra = 0.4μm).
⑨ Shiidida dibadda, φ235 mm sawirka.
⑩ Shiidi gudaha ah, φ42 sawir mm, φ24 sawir mm, si loo hubiyo dulqaadka booska.
⑪ Qalabka CNC ee hal-falka ah ee rogrogaya ayaa la isku waafajiyay si loo hubiyo dulqaadka booska ee shaqada. Dusha sare ee koonka ah ee godka gudaha Ra=0.4μm waa la farsameeyay (qalabka alxanka godka gudaha ee YT726), qalabka nitride-ka boron-ka ee cubic-ga ah ayaa loo isticmaalaa in lagu rogo wareegga dibadda Ra=0.4μm. Dusha sare ee dusha sare ee S, oo isticmaal koolada dheemanka ah si aad u nadiifiso Ra=0.4μm.
Tel/WeChat:
E-mail:
Bogga Hore
Habka ugu Fiican ee Qaybaha Silsiladda Aluminium-ka ee Khafiifka ah ee Saxnaanta Sare leh